SK Universe 大牟田市大正町 102・202 1K
54,000円
賃貸物件
説明
福岡県大牟田市大正町に単身用新築アパートです。
管理形態/管理員の勤務形態:-/-
令和8年1月末完成予定。
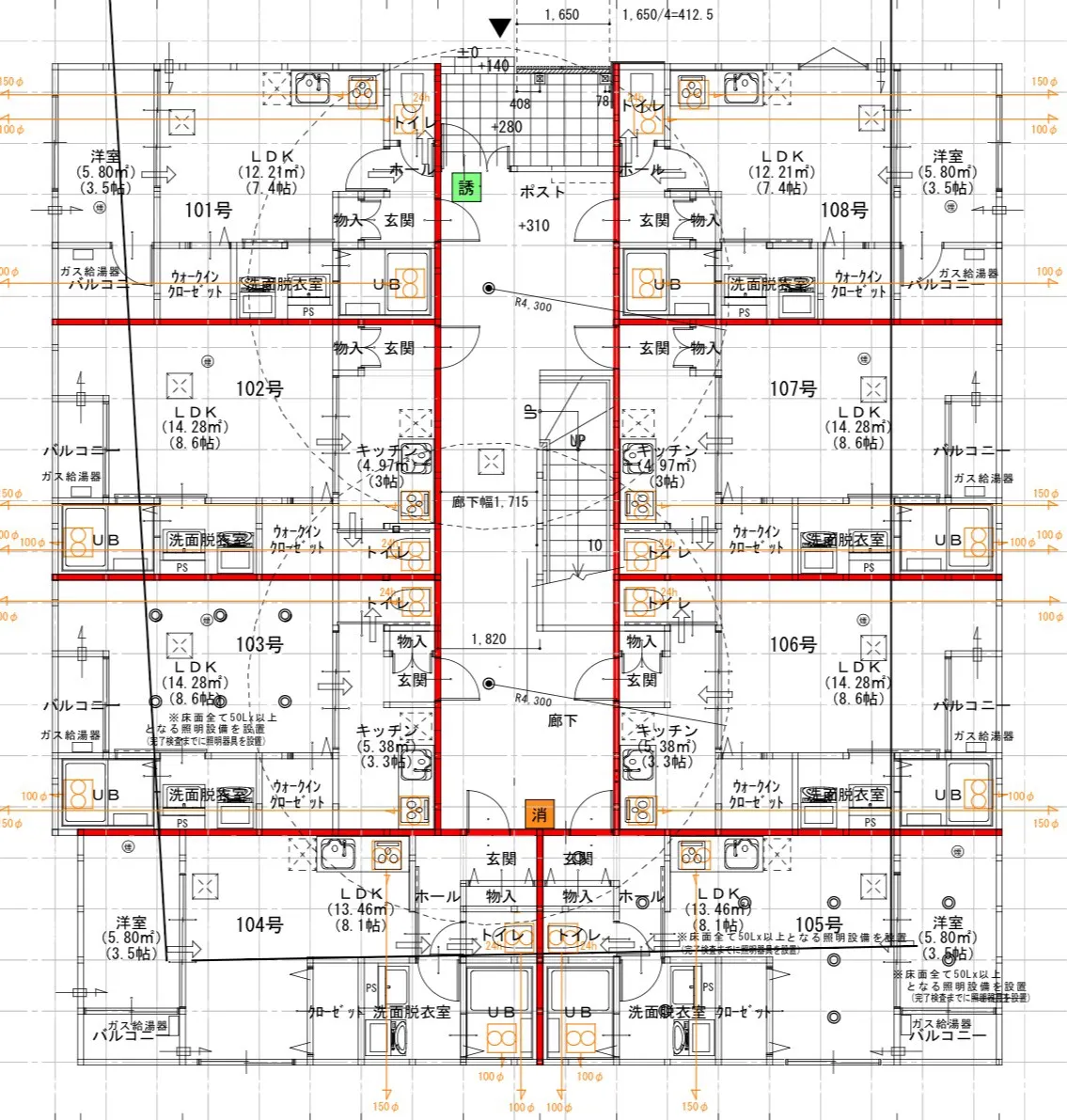
1LDK×1K 16戸
駐車場敷地内 4区画 5,500円 敷地外軽区画 2区画 4,400円
計6区画分先着順です。
近隣も月極駐車場有り
インターネット無料
賃料 54,000~56,000円
2号、3号タイプ 6号、7号タイプ 1K
1号、4号タイプ 5号、8号タイプ 1LDK
保証料総賃料50%(連保有)
退去時清掃費38,500円
安心サポート880円、収納代行費330円別途で発生します。
内覧は事前予約とさせて頂きます。
概要
- 物件 ID 972
- 金額 54,000円
- 物件タイプ 賃貸
- 物件ステータス 賃貸物件
- 築年 2026年1月
- ラベル 入居者募集中
- 住所 福岡県大牟田市大正町2丁目
- 敷金 / 保証金 なし
- 礼金 1ヶ月
- 階建 / 階 2階建 / 1階
- 交通 西鉄天神大牟田線 / 大牟田駅 徒歩9分
- 種目 賃貸アパート
- 管理費等 3,000円
- バス・トイレ バス・トイレ別、浴室乾燥機、洗面所独立、洗面台、シャワー、温水洗浄便座
- キッチン システムキッチン
- セキュリティー オートロック、モニター付インターホン、防犯カメラ
- 収納 収納スペース、シューズボックス
- 設備・サービス 室内洗濯機置場、給湯、全居室フローリング、室内物干し、プロパンガス、エアコン、間接照明
- その他 宅配BOX、バルコニー、駐輪場
- 保険等 要 2年 20,000円 家財
- 建物構造・工法 木造
- 駐車場 あり
- 契約期間 2年
- 入居可能時期 2026年2月上旬予定
